Work Casa Sanitas

Project
Casa Sanitas
Location:
Boulder, Colorado
Size:
3,000 Sf
Completed:
Under Construction

How can we design a home that enhances our connection to the natural world?

Buildings are responsible for more than 40 percent of global energy used, and as much as one third of global greenhouse gas emissions. As the cost of energy rises, and rapid urbanization increases, it has become imperative to take advantage of low cost passive strategies to reduce the energy demand of our buildings, improve the resiliency of our local communities and contribute to a positive energy future.

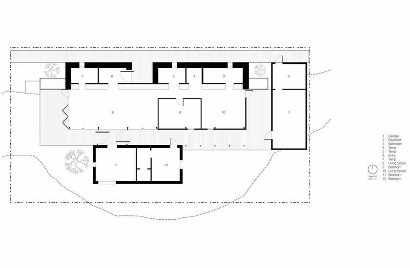
Casa Sanitas: A Rammed Earth Prototype

Casa Sanitas (a healthy home)  a rammed earth research project and the first rammed earth house to be constructed in the city of Boulder, Colorado.

Conceived as a sustainable alternative to the conventional wood frame houses found across the Colorado Front Range. The Casa Sanitas prototype is designed to be a ‘positive energy home’ (positive energy homes produce more energy over the course of a year than they use) and combines cost effective passive design strategies that include the high thermal mass of RE walls, natural ventilation and passive solar orientation, with photovoltaic panels (PV), solar thermal hot water and a small ground source heat pump for radiant heating and cooling.

A key objective of the project is to develop a comprehensive rammed earth case study to help inform a set of best practices for rammed earth construction in the colder climate of Colorado, specifically around optimized thermal performance, as well as to establish a living laboratory to build local knowledge in the design and construction of sustainable, affordable, and regionally appropriate housing.

Phase two of the research project will include installing a custom data acquisition system to monitor the house over several years to collect data on the energy performance of the RE prototype over multiple seasons, as well as to improve the energy modeling capabilities for high thermal mass RE homes in the Colorado Front Range region.

Additional research supported by the National Natural Science Foundation of China includes exploring the feasibility of contemporary post-tensioned rammed earth wall systems in rural China through a research collaboration between Pyatt Studio and Dr. Rong Rong Hu from Xi’an University of Architecture & Technology.